24
$948,800 Sale
Listed 16 hours ago
2098 DUFFERIN STREET
· 3
· 1.5
· 2
· 1100 - 1500
Key Facts
Key facts for 2098 DUFFERIN STREET
Property Type
House, House
Parking
Garage: Yes, 2 parking
MLS #
W12451412
Size
1100 - 1500 sqft
Basement
Finished, N/A (Finished)
Listed on
-
Lot size
-
Tax
-
Days on Market
-
Year Built
-
Maintenance Fee
-
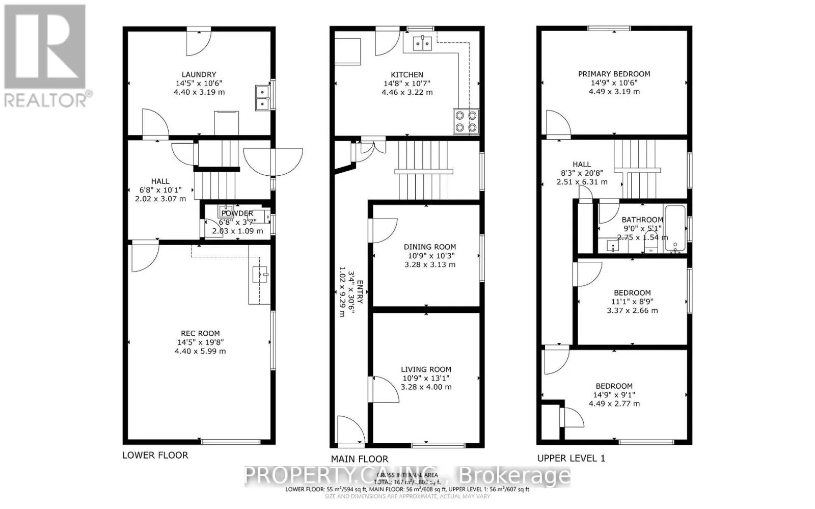
Description
Welcome to 2098 Dufferin Street! This beautifully maintained two-storey detached home offers timeless charm and awaits your personal touch. The sun-drenched main floor boasts a spacious living room, a separate dining room, and an eat-in kitchen with a walk-out to an elevated terrace a perfect spot f...or morning coffee and soaking up the city vibe. Hardwood floors flow throughout LR,DR & upper level. Complemented by three well-appointed bedrooms and a recently renovated four-piece bathroom. A convenient two-piece powder rm' is located on the lower level. The finished basement features a large, inviting recreation room with a sep entrance, ideal for entertaining. Recent updates include a new roof and aluminum in 2020, and new windows in 2021. Enjoy the fully fenced front yard. Located in the heart of the city & conveniently close to Dufferin and Eglinton, the future Eglinton LRT, restaurants, shops, major hwys, and public trans. 2098 Dufferin is ready for you to make it your own. (id:10452)
Similar Properties (No results)
Room Types
Bedroom 2
-
Dimensions 3.37 m x 2.66 m
96.49 sqft
Bedroom 3
-
Dimensions 4.49 m x 2.77 m
133.87 sqft
Dining room
-
Dimensions 3.28 m x 3.13 m
110.51 sqft
Listing courtesy of: PROPERTY.CA INC.
This REALTOR.ca listing content is owned and licensed by REALTOR® members of The Canadian Real Estate Association.